网站支持IPv6
智能问答
|
个人中心
|
智乐山
|
长者专区
|
适老版
|
无障碍
|
繁
网站首页
党务公开
政务公开
政务服务
政民互动
走进乐山
数据开放
索 引 号 :
008550509/2025-00005
发布机构:
市自然资源和规划局
发布日期:
2025-06-26
文 号:
无
有 效 性 :
有效
公开时限:
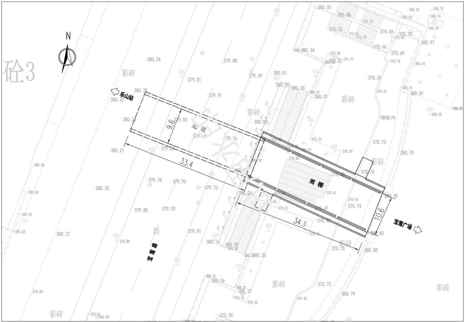
高铁乐山站配套进出站地下通道项目工规证公布
高铁乐山站配套进出站地下通道项目建设工程规划许可证已于2025年6月25日核发,现予公布。
总平图:
附件:
高铁乐山站配套进出站地下通道项目建设工程规划许可证.pdf
扫一扫在手机打开当前页
【打印本页】
【返回顶部】
网站地图
隐私条款
网站声明
联系我们
主办单位:乐山市人民政府办公室
承办单位:乐山市数据局
网站标识码 5111000002
蜀ICP备 12011101号-1
川公网安备 51110202000199号
政务新媒体矩阵
乐山发布
×
温馨提示:
请完成个人中心登录后进行相关操作。
登录